


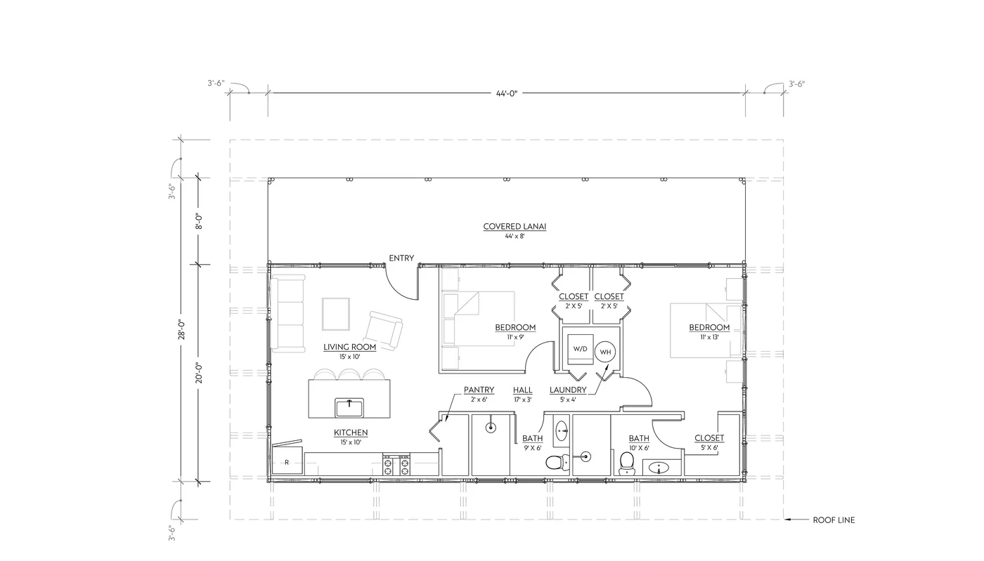
ZEN 880
The Zen 880 is a simple and elegant two-bedroom, two-bathroom home. Designed with a hip roof and eaves encircling the entire structure, our Zen model draws inspiration from modern and calming aesthetics.
Have A Closer Look






BASE PLANS
We offer versatile base plan options, thoughtfully designed to accommodate diverse lifestyles. Bypass extended timelines and added architectural services fees by selecting one of our base plan offerings, or use them as a jumping off point to co-design your perfectly tailored space with our architects.

You may also like
PUNA 352
Tiny footprint, big impact! Discover the perfect blend of tranquility and functionality…
POLYNESIAN 352
Tiny footprint, big impact! Discover the perfect blend of tranquility and functionality…