


VILLA 1600
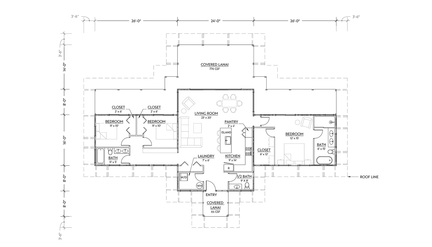
Introducing the Villa 1600 – a magnificent estate house boasting 3 bedrooms, 2.5 bathrooms, and a sprawling 841 square foot lanai. This grand residence features an open living/dining room concept, divided into 3 wings with a spacious great room at its heart. Step into luxury as each bedroom comes with its private entrance opening up onto the expansive lanai. Truly a blend of elegance and functionality, the Villa 1600 is the epitome of tropical modern living.
Have A Closer Look







BASE PLANS
We offer versatile base plan options, thoughtfully designed to accommodate diverse lifestyles. Bypass extended timelines and added architectural services fees by selecting one of our base plan offerings, or use them as a jumping off point to co-design your perfectly tailored space with our architects.

You may also like
PUNA 352
Tiny footprint, big impact! Discover the perfect blend of tranquility and functionality…
POLYNESIAN 352
Tiny footprint, big impact! Discover the perfect blend of tranquility and functionality…