


POLYNESIAN 1248
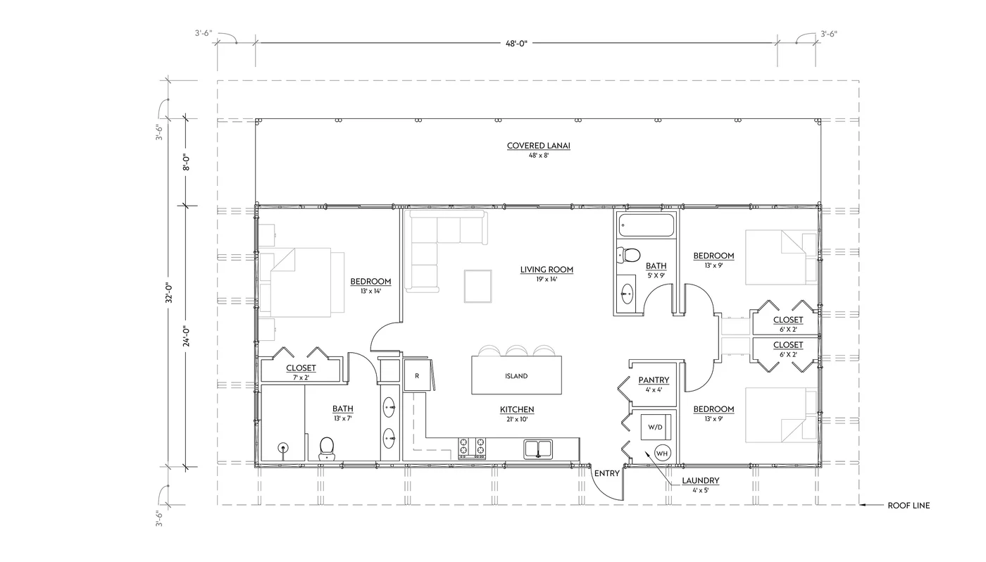
The Polynesian 1248 offers spacious living area and an impressive ceiling with over 20’ to the ridge. Large vents on either side of the roof allow for passive cooling and ventilation. The lanai can stretch across the entire long edge of the home, offering plenty of space for multiple activities. The loft can be used for lounging, a play area, an extra bedroom/guest room, office space, art space, or meditation space. Add a dormer to one or both sides of this model to let tons of natural light into your loft and create more usable space (Dormers are add-on items and not included in the building kit cost).
Have A Closer Look






BASE PLANS
We offer versatile base plan options, thoughtfully designed to accommodate diverse lifestyles. Bypass extended timelines and added architectural services fees by selecting one of our base plan offerings, or use them as a jumping off point to co-design your perfectly tailored space with our architects.
You may also like
PUNA 352
Tiny footprint, big impact! Discover the perfect blend of tranquility and functionality…
POLYNESIAN 352
Tiny footprint, big impact! Discover the perfect blend of tranquility and functionality…
