


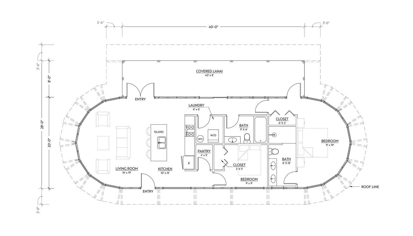
CELESTIAL 1106
This home is inspired by traditional Mayan architecture with rounded ends and bedrooms designed to offer 180-degree views. Perfect for a site with wrap-around scenery, this home features an open-concept floor plan that makes it ideal for a weekend getaway, a primary residence, or even as a resort unit. Enjoy the comfort and practicality of a space that seamlessly connects with its surroundings.
Have A Closer Look







BASE PLANS
We offer versatile base plan options, thoughtfully designed to accommodate diverse lifestyles. Bypass extended timelines and added architectural services fees by selecting one of our base plan offerings, or use them as a jumping off point to co-design your perfectly tailored space with our architects.

You may also like
PUNA 352
Tiny footprint, big impact! Discover the perfect blend of tranquility and functionality…
POLYNESIAN 352
Tiny footprint, big impact! Discover the perfect blend of tranquility and functionality…