


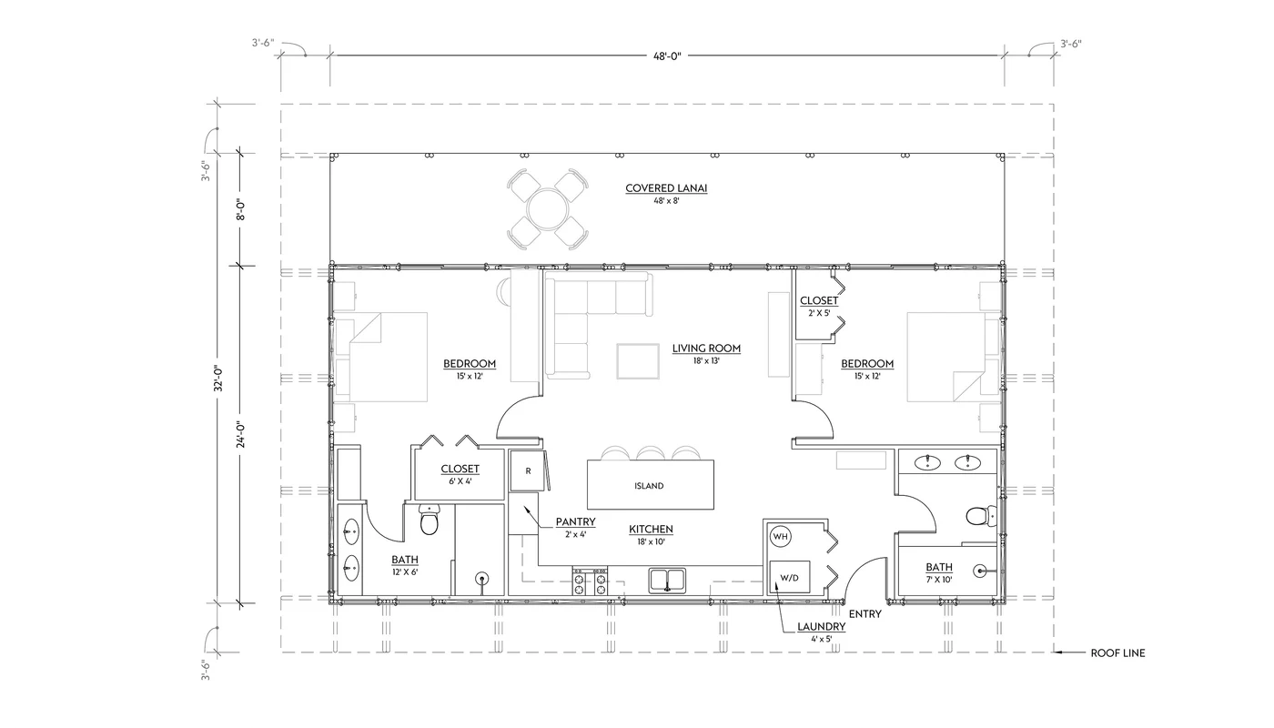
BALI 1152
The Bali 1152 would make for an excellent family home or resort suite. Our Bali style roofline contains lofty open beam ceilings with over 15’ to the top of the ridge, while the flying gables add a dramatic Asian flair and allow hot air to exit the building. The roof is a combination of a gable and hip roof which allows you to have covered windows with eaves protecting them.
Have A Closer Look






BASE PLANS
We offer versatile base plan options, thoughtfully designed to accommodate diverse lifestyles. Bypass extended timelines and added architectural services fees by selecting one of our base plan offerings, or use them as a jumping off point to co-design your perfectly tailored space with our architects.

You may also like
PUNA 352
Tiny footprint, big impact! Discover the perfect blend of tranquility and functionality…
POLYNESIAN 352
Tiny footprint, big impact! Discover the perfect blend of tranquility and functionality…